 
        
        
      
    
    EXPERTISE
EXPERTISE
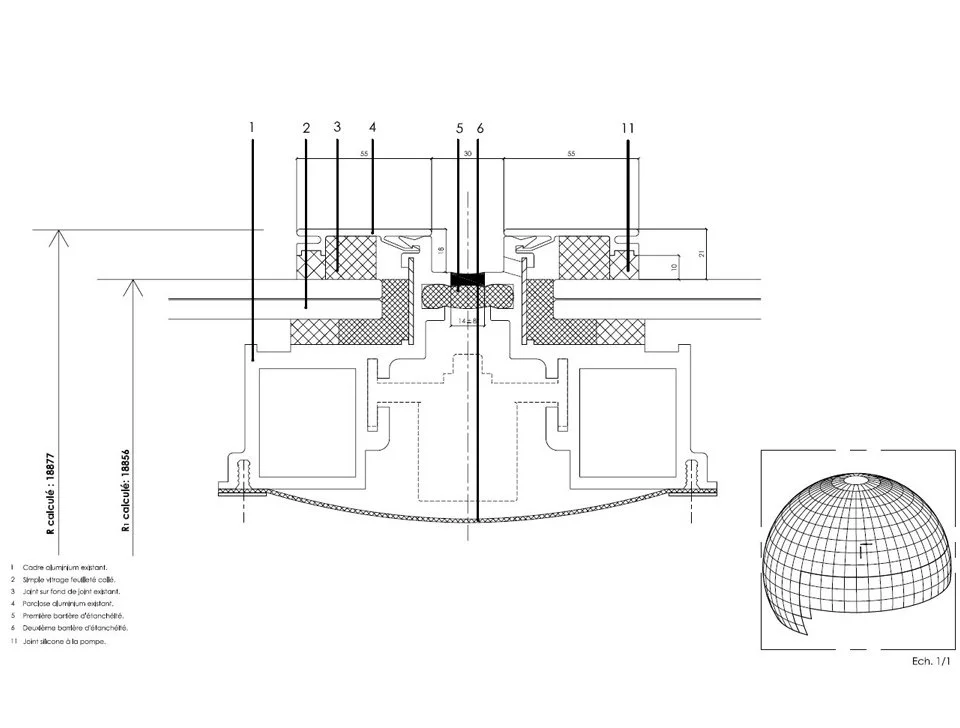
Les façades sont complexes et exposées à des conditions météorologiques difficiles : de ce fait, des défaillances de produits ou de systèmes ne sont malheureusement pas rares.
Une conception soignée de la façade et un choix approprié d'entrepreneur aide à réduire ces risques, aussi bien que l'application d'un programme de maintenance périodique.
Mais en cas de défaillance avérée, nous pouvons intervenir en tant qu’expert afin d’identifier le ou les problèmes puis de préconiser les solutions réparatoires.
VS-A peut ensuite intervenir ultérieurement pour assurer la maitrise d'œuvre des travaux de réparation.
 
                         
                  
                    
                 
                  
                    
                